HOTLINE: 0985727353

Nhà mái nhật 5

Nhà cấp 4 mái Nhật được lấy cảm hứng từ kiến trúc truyền thống Nhật Bản, nổi bật với thiết kế mái ít dốc, nhẹ nhàng và thanh thoát, mang đến cảm giác cân đối và hài hòa. Đặc điểm này giúp mái nhà tạo ra một vẻ đẹp đơn giản, tinh tế, giảm thiểu độ cao nhưng vẫn đảm bảo khả năng thoát nước hiệu quả. Khi du nhập vào Việt Nam, mẫu nhà cấp 4 đẹp này đã được điều chỉnh để phù hợp với thẩm mỹ và khí hậu địa phương, tạo nên sự kết hợp hài hòa giữa yếu tố truyền thống Nhật Bản và phong cách sống hiện đại của người Việt. Với kiến trúc mở và thông thoáng, nhà cấp 4 mái Nhật mang đến không gian sống rộng rãi, thoải mái, tối ưu hóa sự thông gió tự nhiên, giúp ngôi nhà luôn mát mẻ, dễ chịu. Bên cạnh đó, thiết kế nhà mái Nhật thường được kết hợp với sân vườn xanh mát, tạo nên sự cân bằng hoàn hảo giữa không gian sống và thiên nhiên xung quanh. Cảnh quan sân vườn được chăm chút kỹ lưỡng với cây xanh, hồ nước, và các lối đi bằng đá, mang lại cảm giác bình yên, gần gũi và thư giãn.
  • Tên dự án : Nhà mái nhật 5
  • Địa chỉ:
  • Thời gian:
  • Khách Hàng :

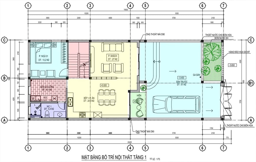
Chi tiết dự án

Mặt bằng công năng nhà ống 3 tầng hiện đại

Với diện tích chiều ngang 6m và chiều sâu 17m, Kisato đã tận dụng không gian một cách hiệu quả để tạo ra một mặt bằng công năng hoàn hảo cho ngôi nhà ống ba tầng hiện đại này. Tại tầng 1, bạn sẽ tìm thấy một sân trước rộng rãi, mang lại không gian ngoài trời thư giãn và giao lưu. Gara để xe được thiết kế tiện lợi, giúp bảo vệ phương tiện của gia đình anh Đinh Duy Khánh. Cùng với đó, có một phòng ngủ tiện nghi và một vệ sinh chung thuận tiện cho việc sử dụng chung. Điểm nhấn tại tầng này là sân ướt, tạo điểm xanh và gió mát cho không gian.

 

 

Phối cảnh 3D nhà ống 3 tầng hiện đại

Nhà ống 4 tầng hiện đại của gia đình anh Khánh tại thành phố Ninh Bình không chỉ là một công trình xây dựng, mà còn là một biểu tượng của sự hài hòa giữa kiến trúc và thiên nhiên.

Khi bước vào ngôi nhà, bạn sẽ ngay lập tức bị cuốn hút bởi không gian xanh mướt, với hàng loạt cây xanh được tinh tế sắp xếp ở mỗi ban công. Những dòng cây với lá xanh tươi mát tạo nên cảm giác gần gũi với thiên nhiên, giúp làm dịu đi khí trời nóng bức của mùa hè.

Tông màu chủ đạo của ngôi nhà là màu xám, tạo nên sự sang trọng và hiện đại, pha trộn hài hòa với màu xanh của cây cỏ. Các mảng trần ốp giả gỗ kết hợp với đèn âm trần tạo nên không gian ấm áp và đậm chất thiên nhiên.


Ban công rộng rãi trải dài xung quanh nhà, tạo nên không gian thư giãn lý tưởng cho gia đình. Tại đây, bạn có thể thư thả ngắm nhìn khung cảnh xung quanh hoặc tận hưởng không khí trong lành của buổi sớm mai.

Hệ thống cửa nhôm kính Xingfa cao cấp không chỉ tạo nên vẻ đẹp mỹ quan mà còn đảm bảo sự an toàn và tiện nghi cho ngôi nhà. Sân trước nhà được thiết kế tiện lợi, không chỉ là nơi để xe mà còn là không gian để trồng cây hoặc thư giãn sau một ngày làm việc căng thẳng.


Tường rào bao quanh bảo vệ công trình, đồng thời tạo nên sự riêng tư và an ninh cho gia đình. Những đường nét đơn giản và tinh tế của tường rào tôn lên vẻ đẹp sang trọng và hiện đại của ngôi nhà.

Có thể thấy, nhà ống ba tầng của gia đình anh Khánh không chỉ là nơi ở, mà còn là biểu tượng cho lối sống xanh và tiện nghi. Với không gian mở rộng và các tiện ích đầy đủ, từ sân trước nhà tiện lợi đến tường rào bảo vệ công trình, không gian sống của họ không chỉ là một nơi ở mà còn là một ngôi nhà đầy đủ tiện ích và tận hưởng cuộc sống đúng nghĩa.

Ánh Dương tặng bạn 1000+ nhà ống hiện đại

Tự hào là đơn vị tiên phong trong lĩnh vực kiến trúc – xây dựng, Ánh Dương không ngừng sáng tạo, hội nhập và phát triển để cho ra đời những mẫu thiết kế, những công trình xứng tầm đem đến cho chủ đầu tư trên khắp 63 tỉnh thành. Bên cạnh đó, Kisato còn không ngừng nghiên cứu, tìm tòi, áp dụng công nghệ, vật liệu tiên tiến nhất, chất lượng nhất vào thi công nhà để mang đến một không gian sang trọng, cao cấp, tối ưu được toàn diện về cả thẩm mỹ lẫn công năng.  Với kinh nghiệm thực chiến cùng đội ngũ nhân sự chuyên môn, chuyên nghiệp, chúng tôi tin rằng có thể đáp ứng mọi nhu cầu đồng thời thỏa mãn mọi nguyện vọng của gia chủ.

Mỗi năm chúng tôi cho ra đời hơn 1000 mẫu thiết kế nhà ống 4 tầng hiện đại. Để nhận được mẫu thiết kế nhà đẹp hãy kích vào tại đây nhé.

0985727353
challenges-icon chat-active-icon chat-active-icon chat-active-icon